1004 N Scenic DrivePayson, AZ 85541
Due to the health concerns created by Coronavirus we are offering personal 1-1 online video walkthough tours where possible.




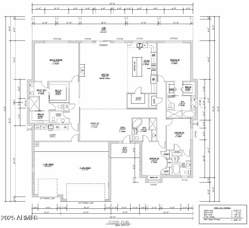
Introducing a stunning new construction opportunity in the prestigious Chaparral Pines Golf Community, perfectly positioned on a premium lot overlooking the picturesque par-3 4th hole with its shimmering lake and waterfall views. This proposed single-level residence offers timeless design, cutting-edge construction, and luxury finishes throughout and anticipated to be completed in late spring of 2026. Built with Fox Blocks Insulated Concrete Forms, the home will feature double-insulated, steel-reinforced concrete walls that deliver exceptional strength, efficiency, and peace of mind. This building system is engineered to exceed today's codes while providing superior durability, energy performance, and sound reduction, ensuring the home is as solid as it is beautiful. Finishes can be customized with an accepted offer. The thoughtfully designed floor plan offers over 3,279 square feet of livable space with four bedrooms, each with its own en-suite bath, including a luxurious primary suite with a spa-inspired bathroom and walk-in closet. Enter through a welcoming foyer and formal dining area that opens into a vaulted great room with a fireplace, seamlessly connecting to the expansive covered patio. The gourmet kitchen is the centerpiece of the home, boasting a custom hood, large island, undercounter wine refrigerator, upgraded flooring, and striking tile finishes, along with a generous pantry. Heated bathroom floors and smart-home technology, including a ''vacation mode,'' add comfort and convenience. Outside, a brick paver driveway leads to a three-car garage, while a stone-accented walkway guides you to the recessed entry porch. The home's rear elevation captures sweeping views of the golf course and pond, enhanced by cable railing on the covered deck to preserve the scenery. Combining elegance with practical design, the residence totals over 4,800 square feet under roof including porches and garage. Set within the guard-gated, master-planned Chaparral Pines community, residents enjoy access to the award-winning golf course, clubhouse dining, fitness facilities, pool, and a wide range of recreational amenities, all surrounded by the natural beauty of Arizona's Rim Country.
| 2 months ago | Listing updated with changes from the MLS® | |
| 3 months ago | Listing first seen on site |
All information should be verified by the recipient and none is guaranteed as accurate by ARMLS. Copyright 2026 Arizona Regional Multiple Listing Service, Inc. All rights reserved.
Last checked: 2026-02-03 03:57 PM UTC

Did you know? You can invite friends and family to your search. They can join your search, rate and discuss listings with you.